デジタルカードならすぐ発行
入会費・年会費無料
ANAマイレージクラブカード
よりおトクにマイルを貯めるなら
クレジット機能付き
ANAカード
障がいの有無に関わらず、すべての方に使いやすいよう配慮された部屋(車いす利用者だけでなく、聴覚障害や視覚障害のある方、高齢者、お子様連れなどあらゆる対象)として各ホテルにて設定されているお部屋をご案内いたします。
心身の障がいやアレルギーを含む病気、けがのあるお客様が、これらを理由に心配なことや不安に感じていることなどのご相談やご希望をお伺いします。
当プランについてはお客様の状況・ご要望をお伺いさせていただく場合があります。車いすのお手配や空港でのお手伝いが必要な場合は、ダイナミックパッケージでのご予約時「お客様情報入力」画面、連絡情報入力に続いて「サポート情報入力」にご登録ください。後日ご予約者さまへご連絡させていただきます。
宿泊のみのご予約で特別な配慮を必要とされるお客様は、ご予約の施設に事前にご連絡ください。
お客様情報入力画面内「+入力する」ボタンを選択後、入力フォームが表示されますので、必要事項をご記入ください。
記載の内容は2026年2月現在のもので、変更となることがあります。
車いすやシャワーチェアの貸出は数に限りがある場合がありますので、ご予約の施設にご確認ください。
北海道
62平米のゆったり空間に手すりのついた広めのトイレや独立したバスルームを備えた、車いすをご利用のお客様も安心の快適空間です。
「◯」は対応していることを表します
「✕」は対応していないことを表します
| 部屋名称 | ユニバーサルルーム |
|---|---|
| 設定ルーム数 | 1室 |
| お部屋の広さ | 62平米 |
| 利用人数 | 2~4名 |
| ベッド幅 / 1台あたり | 120センチ(3台目以降は100センチ) |
| 禁煙・喫煙 | 禁煙 |
| 車いすでの利用 | ◯ |
| 部屋の入口幅 | 78センチ |
| 車いす貸し出し | 館内◯、館外× |
| シャワーチェア貸し出し | ◯ |
| 多目的トイレ(館内) | ◯ |
| 筆談具 | ◯ |
| エレベーター | ◯ |
| フロント有人対応時間 | 24時間 |
客室(イメージ)
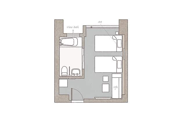
バスルーム(イメージ)
ユニバーサルルーム間取り図(イメージ)
北海道
車いすご利用のお客様に快適なバリアフリーのお部屋をご用意しております。バスルームの入り口にはスライド式ドアを設置。室内の段差をなくし、それぞれの間口は通常より広く設計されています。
「◯」は対応していることを表します
「✕」は対応していないことを表します
| 部屋名称 | バリアフリーツインルーム / バリアフリー和洋室 |
|---|---|
| 設定ルーム数 | 1室 / 1室 |
| お部屋の広さ | 26平米 / 52平米 |
| 利用人数 | 1~2名 / 2~4名 |
| ベッド幅 / 1台あたり | 122センチ / 102センチ |
| 禁煙・喫煙 | 禁煙 / 禁煙 |
| 車いすでの利用 | ◯ |
| 部屋の入口幅 | 90センチ |
| 車いす貸し出し | 館内◯、館外◯ |
| シャワーチェア貸し出し | ◯ |
| 多目的トイレ(館内) | ◯ |
| 筆談具 | ◯ |
| エレベーター | ◯ |
| フロント有人対応時間 | 24時間 |
バリアフリーツイン(イメージ)
バリアフリーツイン バスルーム(イメージ)
バリアフリー和洋室(イメージ)
バリアフリー和洋室(イメージ)
バリアフリーツイン間取り図(イメージ)
バリアフリー和洋室間取り図(イメージ)
北海道
車椅子の方も快適にご利用いただけるユニバーサルルームです。リクライニングベッド1台とシングルベッド1台をご用意した2名様までのお部屋で、車椅子でご利用いただけるトイレ・客室風呂を完備しております。
「◯」は対応していることを表します
「✕」は対応していないことを表します
| 部屋名称 | ユニバーサルルーム |
|---|---|
| 設定ルーム数 | 3室 |
| お部屋の広さ | 33平米 |
| 利用人数 | 1~2名 |
| ベッド幅 / 1台あたり | シングルベット:100センチ、リクライニングベット:90センチ |
| 禁煙・喫煙 | 禁煙 |
| 車いすでの利用 | ◯ |
| 部屋の入口幅 | 90センチ |
| 車いす貸し出し | 館内◯、館外× |
| シャワーチェア貸し出し | ◯ |
| 多目的トイレ(館内) | ◯ |
| 筆談具 | × |
| エレベーター | ◯ |
| フロント有人対応時間 | 24時間 |
客室の一例(イメージ)
洗面台の一例(イメージ)
バス・トイレ(イメージ)
ユニバーサルルーム間取り図(イメージ)
埼玉県
車椅子でのご利用を配慮したバリアフリーのお部屋をご用意いたしました。ベッド間隔を広くとり、車椅子でもゆったりご利用いただけるツインルームタイプです。
「◯」は対応していることを表します
「✕」は対応していないことを表します
| 部屋名称 | バリアフリールーム |
|---|---|
| 設定ルーム数 | 1室 |
| お部屋の広さ | 38平米 |
| 利用人数 | 1~2名 |
| ベッド幅 / 1台あたり | 120センチ |
| 禁煙・喫煙 | 禁煙 |
| 車いすでの利用 | ◯ |
| 部屋の入口幅 | 入口幅120センチ、ドア幅85センチ |
| 車いす貸し出し | 館内◯(館内のみ3台)、館外× |
| シャワーチェア貸し出し | ◯ |
| 多目的トイレ(館内) | ◯(館内4ヶ所) |
| 筆談具 | ◯(フロントのみ) |
| エレベーター | ◯ |
| フロント有人対応時間 | 24時間 |
客室の一例(イメージ)
バスルーム(イメージ)
ユニバーサルルーム間取り図(イメージ)
東京都
使いやすさに配慮したバリアフリータイプで、キングサイズの大きなベッドがあり、ゆとりのあるレイアウトのお部屋です。
「◯」は対応していることを表します
「✕」は対応していないことを表します
| 部屋名称 | ユニバーサルキング |
|---|---|
| 設定ルーム数 | 1室 |
| お部屋の広さ | 24平米 |
| 利用人数 | 1~2名 |
| ベッド幅 / 1台あたり | 180センチ |
| 禁煙・喫煙 | 禁煙 |
| 車いすでの利用 | ◯ |
| 部屋の入口幅 | 79センチ |
| 車いす貸し出し | 館内◯、館外〇 |
| シャワーチェア貸し出し | ◯ |
| 多目的トイレ(館内) | ◯ |
| 筆談具 | ◯ |
| エレベーター | ◯ |
客室(イメージ)
バス・トイレ(イメージ)
ユニバーサルルーム間取り図(イメージ)
東京都
お部屋、お風呂の入口に十分な幅を確保しております。車椅子をご利用のお客様も、安全で快適にお過ごしいただけます。
「◯」は対応していることを表します
「✕」は対応していないことを表します
| 部屋名称 | ユニバーサルダブル |
|---|---|
| 設定ルーム数 | 2室 |
| お部屋の広さ | 26平米 |
| 利用人数 | 1~2名 |
| ベッド幅 / 1台あたり | 160センチ |
| 禁煙・喫煙 | 禁煙 |
| 車いすでの利用 | ◯ |
| 部屋の入口幅 | 90センチ |
| 車いす貸し出し | 館内◯、館外× |
| シャワーチェア貸し出し | ◯(常備) |
| 多目的トイレ(館内) | 〇(1階ロビー階のみ) |
| 筆談具 | ◯ |
| エレベーター | ◯ |
客室の一例(イメージ)
客室入り口(イメージ)
バス・トイレ(イメージ)
ユニバーサルルーム間取り図(イメージ)
東京都
120センチ幅のセミダブルベッド2台をご用意しております。バリアフリー設計のお部屋で、車いすのお客様も快適にお過ごしいただけます。
下町側に面したお部屋でございます。東京スカイツリー®はご覧いただけません。
「◯」は対応していることを表します
「✕」は対応していないことを表します
| 部屋名称 | ユニバーサルツイン |
|---|---|
| 設定ルーム数 | 2室 |
| お部屋の広さ | 25平米 |
| 利用人数 | 1~2名 |
| ベッド幅 / 1台あたり | 120センチ |
| 禁煙・喫煙 | 禁煙 |
| 車いすでの利用 | ◯ |
| 部屋の入口幅 | 87センチ |
| 車いす貸し出し | 館内◯、館外× |
| シャワーチェア貸し出し | ◯ |
| 多目的トイレ(館内) | 〇(3階フロント階のみ) |
| 筆談具 | ◯ |
| エレベーター | ◯ |
客室(イメージ)
バス・トイレ(イメージ)
ユニバーサルツイン間取り図(イメージ)
千葉県
客室内の床に段差はなく、洗い場付きバス・トイレ・パウダールームが独立型。トイレ・パウダールームの入口は引き戸を採用しています。ハリウッドスタイルのベッドは離したレイアウトも可能です。
「◯」は対応していることを表します
「✕」は対応していないことを表します
| 部屋名称 | ハーモニールーム / シンフォニールーム |
|---|---|
| 設定ルーム数 | 182室 / 154室 |
| お部屋の広さ | 32平米 / 35平米 |
| 利用人数 | 2~3名 / 2~4名 |
| ベッド幅 / 1台あたり | 110センチ |
| 禁煙・喫煙 | 禁煙 |
| 車いすでの利用 | ◯ |
| 部屋の入口幅 | 75センチ |
| 車いす貸し出し | 館内◯、館外〇 |
| シャワーチェア貸し出し | ◯ |
| 多目的トイレ(館内) | ◯ |
| 筆談具 | ◯ |
| エレベーター | ◯ |
| フロント有人対応時間 | 24時間 |
外観(イメージ)
ハーモニールーム客室(イメージ)
シンフォニールーム客室(イメージ)
風呂(イメージ)
ハーモニールーム間取り図 ベッド2台(イメージ)
ハーモニールーム間取り図 ベッド3台(イメージ)
シンフォニールーム間取り図 ベッド3台(イメージ)
シンフォニールーム間取り図 ベッド4台(イメージ)
神奈川県
車いすをご利用の方など、全てのお客さまが快適にお過ごしいただけるバリアフリータイプのお部屋です。お部屋内は段差がなく、客室・バスルーム入口は80cm幅、お部屋の中にも転回スペースを設けております。
「◯」は対応していることを表します
「✕」は対応していないことを表します
| 部屋名称 | ユニバーサルルーム |
|---|---|
| 設定ルーム数 | 3室 |
| お部屋の広さ | 30平米 |
| 利用人数 | 1~2名 |
| ベッド幅 / 1台あたり | 120センチ |
| 禁煙・喫煙 | 禁煙 |
| 車いすでの利用 | ◯ |
| 部屋の入口幅 | 80センチ |
| 車いす貸し出し | 館内◯、館外× |
| シャワーチェア貸し出し | ◯ |
| 多目的トイレ(館内) | 〇(1階1ヶ所のみ) |
| 筆談具 | ◯ |
| エレベーター | ◯ |
客室の一例(イメージ)
お風呂(イメージ)
お手洗い(イメージ)
ユニバーサルルーム間取り図(イメージ)
長野県
ご家族やグループにおすすめのワンランク上のお部屋。広々した49平米のお部屋に幅140センチのダブルベッドを2台備え、車椅子ご利用のお客様にも配慮した機能的な客室です。
「◯」は対応していることを表します
「✕」は対応していないことを表します
| 部屋名称 | ユニバーサルルーム |
|---|---|
| 設定ルーム数 | 1室 |
| お部屋の広さ | 49.2平米 |
| 利用人数 | 1~3名 |
| ベッド幅 / 1台あたり | 140センチ |
| 禁煙・喫煙 | 禁煙 |
| 車いすでの利用 | ◯ |
| 部屋の入口幅 | 90センチ |
| 車いす貸し出し | 館内◯、館外× |
| シャワーチェア貸し出し | ◯ |
| 多目的トイレ(館内) | 〇(2階フロント階のみ) |
| 筆談具 | 〇 |
| エレベーター | ◯ |
| フロント有人対応時間 | 24時間 |
ユニバーサルルーム(イメージ)
ロビー(イメージ)
長野県
バリアフリー設計で、車椅子の方も快適に過ごせるお部屋です。木目調の温かみと洗練されたデザインが調和した空間。室内からは軽井沢の四季折々の美しい景色を堪能でき、心安らぐひとときをお愉しみいただけます。
「◯」は対応していることを表します
「✕」は対応していないことを表します
| 部屋名称 | アクセシブルツイン リバービュー / アクセシブルツイン ガーデンビュー |
|---|---|
| 設定ルーム数 | 6室 |
| お部屋の広さ | 32平米 |
| 利用人数 | 1~2名 |
| ベッド幅 / 1台あたり | 120センチ |
| 禁煙・喫煙 | 禁煙 |
| 車いすでの利用 | ◯ |
| 部屋の入口幅 | ◯ 一般の車いすであればお部屋の入り口は通過できる程度 |
| 車いす貸し出し | 館内〇、館外〇 |
| シャワーチェア貸し出し | ◯ |
| 多目的トイレ(館内) | ◯フロント横 |
| 筆談具 | ◯紙とペンの用意あり |
| エレベーター | ◯ |
| フロント有人対応時間 | 24時間 |
アクセシブルツイン1(イメージ)
アクセシブルツイン2(イメージ)
アクセシブルツイン3(イメージ)
アクセシブルツイン4(イメージ)
福岡県
車椅子のままで快適にお過ごしいただけるよう、通路の幅やバス・トイレの段差などを考慮しました。浴室への扉はスライド式で開閉しやすく、バスチェアーをご用意。1台のベッドはフランスベッド製の電動ベッドです。
「◯」は対応していることを表します
「✕」は対応していないことを表します
| 部屋名称 | バリアフリールーム |
|---|---|
| 設定ルーム数 | 1室 |
| お部屋の広さ | 30平米 |
| 利用人数 | 1~2名 |
| ベッド幅 / 1台あたり | 120センチ |
| 禁煙・喫煙 | 禁煙 |
| 車いすでの利用 | ◯ |
| 部屋の入口幅 | 87センチ |
| 車いす貸し出し | 館内◯、館外× |
| シャワーチェア貸し出し | ◯(常備) |
| 多目的トイレ(館内) | ◯ |
| 筆談具 | ◯ |
| エレベーター | ◯ |
| フロント有人対応時間 | 24時間 |
客室(イメージ)
電動ベッド(イメージ)
バス・トイレ(イメージ)
バス・トイレ(イメージ)
バリアフリールーム間取り図(イメージ)
福岡県
車いすの方も快適にご利用いただけるように動線や設備を考慮したユニバーサルルームです。バス・トイレは独立しており、それぞれに手すりを完備。快適性と安全性を両立しております。
「◯」は対応していることを表します
「✕」は対応していないことを表します
| 部屋名称 | 【South Wing】1~3名 / 【North Wing】1~4名 |
|---|---|
| 設定ルーム数 | 1室 / 1室 |
| お部屋の広さ | 35平米 / 29平米 |
| 利用人数 | 1~3名 / 1~4名 |
| ベッド幅 / 1台あたり | 120センチ |
| 禁煙・喫煙 | 禁煙 |
| 車いすでの利用 | ◯ |
| 部屋の入口幅 | 85センチ |
| 車いす貸し出し | × |
| シャワーチェア貸し出し | ◯ |
| 多目的トイレ(館内) | ◯ |
| 筆談具 | ◯ |
| エレベーター | ◯ |
| フロント有人対応時間 | 24時間 |
North Wing 客室(イメージ)1
North Wing 客室(イメージ)2
South Wing 客室(イメージ)1
South Wing 客室(イメージ)2
大分県
車椅子でのご移動や入浴などに配慮したバリアフリー対応の客室で、足に不安がある方・ご高齢の方など、すべての方に安心してご利用いただけます。
バスルームはバリアフリー対応です。
バストイレ別
「◯」は対応していることを表します
「✕」は対応していないことを表します
| 部屋名称 | アクセシブルツイン |
|---|---|
| 設定ルーム数 | 2室 |
| お部屋の広さ | 25平米 |
| 利用人数 | 1~2名 |
| ベッド幅 / 1台あたり | 120センチ |
| 禁煙・喫煙 | 禁煙 |
| 車いすでの利用 | ◯ |
| 車いす貸し出し | 館内◯、館外X |
| シャワーチェア貸し出し | ◯(客室に常設) |
| 多目的トイレ(館内) | ◯ |
| 筆談具 | ◯ |
| エレベーター | ◯ |
| フロント有人対応時間 | 24時間 |
外観(イメージ)
アクセシブルツイン(イメージ)
最上階 展望大浴場(イメージ)
アクセシブルツイン浴室(イメージ)
アクセシブルツイン間取り図(イメージ)
長崎県
車いすでも安心なユニバーサルルーム。バス・トイレも別で広々とした造りとなっております。
「◯」は対応していることを表します
「✕」は対応していないことを表します
| 部屋名称 | ユニバーサルデラックスツインルーム |
|---|---|
| 設定ルーム数 | 1室 |
| お部屋の広さ | 56平米 |
| 利用人数 | 1~3名 |
| ベッド幅 / 1台あたり | 120センチ、エキストラベッド:110センチ |
| 禁煙・喫煙 | 禁煙 |
| 車いすでの利用 | ◯ |
| 部屋の入口幅 | 80センチ |
| 車いす貸し出し | 館内◯、館外× |
| シャワーチェア貸し出し | ◯ |
| 多目的トイレ(館内) | ◯ |
| 筆談具 | ×フロントにて対応可 |
| エレベーター | ◯ |
| フロント有人対応時間 | 24時間 |
客室(イメージ)
客室内浴室(イメージ)
お手洗い(イメージ)
沖縄県
引戸や手すりの設置に加え、各スイッチを低位置に配置しております。さらには車いすの出入りがスムーズに行えるようなベッド配置など、国内最大数のユニバーサルデザインのお部屋をご用意しております。
「◯」は対応していることを表します
「✕」は対応していないことを表します
| 部屋名称 | ユニバーサルルーム |
|---|---|
| 設定ルーム数 | 36室 |
| お部屋の広さ | 44.6~46.3平米 |
| 利用人数 | 1~3名 |
| ベッド幅 / 1台あたり | 140センチ(3名利用の場合はエキストラベッド) |
| 禁煙・喫煙 | 禁煙 |
| 車いすでの利用 | ◯ |
| 部屋の入口幅 | 80センチ |
| 車いす貸し出し | 館内◯、館外〇 |
| シャワーチェア貸し出し | ◯(要事前予約) |
| 多目的トイレ(館内) | ◯ |
| 筆談具 | ◯ |
| エレベーター | ◯ |
| フロント有人対応時間 | 24時間 |
ユニバーサルルーム(イメージ)
ユニバーサルルーム間取り図(イメージ)
沖縄県
どなたにも快適にお過ごしいただけるよう配慮したお部屋「アクセシブルルーム」をご用意。また、ご同伴の方が安心してお泊まりいただけるよう、内ドアで行き来できるコネクティングルームとしてご利用いただけます。
「◯」は対応していることを表します
「✕」は対応していないことを表します
| 部屋名称 | アクセシブルコネクティング |
|---|---|
| 設定ルーム数 | 1室 |
| お部屋の広さ | 36平米(2室) |
| 利用人数 | 2~4名 |
| ベッド幅 / 1台あたり | 110センチ ※コネクティングルーム140センチ |
| 禁煙・喫煙 | 禁煙 |
| 車いすでの利用 | ◯ |
| 部屋の入口幅 | 81センチ |
| 車いす貸し出し | 館内◯、館外◯ |
| シャワーチェア貸し出し | ◯ |
| 多目的トイレ(館内) | ◯ |
| 筆談具 | ◯ |
| エレベーター | ◯ |
| フロント有人対応時間 | 24時間 |
客室(イメージ)
客室(イメージ)
バス・トイレ(イメージ)
アクセシブルコネクティング間取り図(イメージ)
沖縄県
浴槽やトイレには手すりを設置し、ご高齢の方や車いすでのご利用にも配慮したバリアフリーのお部屋です。
「◯」は対応していることを表します
「✕」は対応していないことを表します
| 部屋名称 | ユニバーサルツイン |
|---|---|
| 設定ルーム数 | 1室 |
| お部屋の広さ | 26平米 |
| 利用人数 | 1~4名 |
| ベッド幅 / 1台あたり | 130センチ |
| 禁煙・喫煙 | 禁煙 |
| 車いすでの利用 | ◯ |
| 部屋の入口幅 | 82センチ |
| 車いす貸し出し | 館内×、館外× |
| シャワーチェア貸し出し | × |
| 多目的トイレ(館内) | ◯ |
| 筆談具 | × |
| エレベーター | ◯ |
| フロント有人対応時間 | 24時間 |
客室の一例(イメージ)
バスルーム(イメージ)
ユニバーサルルーム間取り図(イメージ)
沖縄県
広い間口のバスルーム、バリアフリー対応のトイレなどご高齢の方や車いすのご利用にも配慮したお部屋です。畳のリビングで安全、快適にお過ごしください。
「◯」は対応していることを表します
「✕」は対応していないことを表します
| 部屋名称 | ユニバーサルルーム(バリアフリー) |
|---|---|
| 設定ルーム数 | 1室 |
| お部屋の広さ | 63平米 |
| 利用人数 | 1~6名 |
| ベッド幅 / 1台あたり | 120センチ |
| 禁煙・喫煙 | 禁煙 |
| 車いすでの利用 | ◯ |
| 部屋の入口幅 | 84センチ |
| 車いす貸し出し | 館内×、館外× |
| シャワーチェア貸し出し | ◯ |
| 多目的トイレ(館内) | ◯ |
| 筆談具 | × |
| エレベーター | ◯ |
| フロント有人対応時間 | 24時間 |
ベッドルームの一例(イメージ)
リビングの一例(イメージ)
ユニバーサルルーム間取り図(イメージ)
沖縄県
バリアフリールームで安全、快適にお過ごしいただけます。入口を広くとったバスルームは手すりの設置などご高齢の方や車いすでのご利用にも配慮したお部屋です。
「◯」は対応していることを表します
「✕」は対応していないことを表します
| 部屋名称 | ユニバーサルルーム |
|---|---|
| 設定ルーム数 | 8室 |
| お部屋の広さ | 21.0~21.3平米 |
| 利用人数 | 1~2名 |
| ベッド幅 / 1台あたり | 180センチ |
| 禁煙・喫煙 | 禁煙 |
| 車いすでの利用 | ◯ |
| 部屋の入口幅 | 80センチ |
| 車いす貸し出し | 館内◯、館外× |
| シャワーチェア貸し出し | ◯ |
| 多目的トイレ(館内) | ◯(1階) |
| 筆談具 | × |
| エレベーター | ◯ |
| フロント有人対応時間 | 24時間 |
客室の一例(イメージ)
バス・トイレ(イメージ)
ユニバーサルルーム間取り図(イメージ)
沖縄県
車いすをご利用のお客様でも安心してお過ごしいただけるよう、浴室内には手すりを設置しており、バスタブやアメニティの設置台を低くするなど、配慮したお部屋設計となっております。
「◯」は対応していることを表します
「✕」は対応していないことを表します
| 部屋名称 | ユニバーサルルーム |
|---|---|
| 設定ルーム数 | 6室(喫煙2室/禁煙4室) |
| お部屋の広さ | 32.5平米 |
| 利用人数 | 1~3名 |
| ベッド幅 / 1台あたり | 122センチ(3名利用の場合はエキストラベッド) |
| 禁煙・喫煙 | 喫煙2 / 禁煙4 |
| 車いすでの利用 | ◯ |
| 部屋の入口幅 | 92センチ |
| 車いす貸し出し | 館内◯、館外× |
| シャワーチェア貸し出し | ◯ |
| 多目的トイレ(館内) | ◯ |
| 筆談具 | ◯ |
| エレベーター | ◯ |
| フロント有人対応時間 | 24時間 |
客室(イメージ)
客室(イメージ)
バスルーム(イメージ)
沖縄県
バリアフリールームはフラットな造りで浴槽やトイレには手すりを設置しています。ボタンの配置場所やスライドドア対応のユニットバスなど「安心してくつろげる空間」の客室となっております。
「◯」は対応していることを表します
「✕」は対応していないことを表します
| 部屋名称 | デラックスツイン バリアフリー対応 |
|---|---|
| 設定ルーム数 | 4室 |
| お部屋の広さ | 25平米 |
| 利用人数 | 1~2名 |
| ベッド幅 / 1台あたり | 113センチ |
| 禁煙・喫煙 | 禁煙 |
| 車いすでの利用 | ◯ |
| 部屋の入口幅 | 90センチ |
| 車いす貸し出し | ◯(館内のみ) |
| シャワーチェア貸し出し | ◯ |
| 多目的トイレ(館内) | ◯ |
| 筆談具 | ◯ |
| エレベーター | ◯ |
| フロント有人対応時間 | 24時間 |
客室の一例(イメージ)
バス・トイレ(イメージ)
ユニバーサルルーム間取り図(イメージ)
掲載画像はすべてイメージです。
1
2
3
4
5
6
7
8
9
0
a
b
c
d
e
f
g
h
i
j
k
l
m
n
o
p
q
r
s
t
u
v
w
x
y
z
A
B
C
D
E
F
G
H
I
J
K
L
M
N
O
P
Q
R
S
T
U
V
W
X
Y
Z
全てクリア
一文字クリア
ログイン画面で「ログイン状態を保持」にチェックをすると、次回以降、お客様番号、パスワードの入力を省略できます。
「次回以降、この確認画面を表示しない」にチェックをした場合でも、全てのブラウザを終了すると再度この確認画面が表示されます。
XXXXXXXxxx@gmail.com
に送信されたワンタイムパスワードと同じ絵文字・数字を選択してください。選択する順番は問いません。
* メール等をご確認の際はこの画面を閉じないようご注意ください。
ワンタイムパスワードが届かない場合
メール等が届かない場合はこちら
で受信設定をご確認のうえ再送信してください。
一定時間画面操作がされない場合は、ワンタイムパスワードを再送信して頂く必要があります。
メール等が届かない場合はこちら
で受信設定をご確認のうえ再送信してください。
現在システムメンテナンス中につき、一時的に新規登録を停止しております。
マイル
現在のANA SKY コイン数
プレミアムポイント / ANAグループ運航便 /