デジタルカードならすぐ発行
入会費・年会費無料
ANAマイレージクラブカード
よりおトクにマイルを貯めるなら
クレジット機能付き
ANAカード
障がいの有無に関わらず、すべての方に使いやすいよう配慮された部屋(車いす利用者だけでなく、聴覚障害や視覚障害のある方、高齢者、お子様連れなどあらゆる対象)として各ホテルにて設定されているお部屋をご案内いたします。
心身の障がいやアレルギーを含む病気、けがのあるお客様が、これらを理由に心配なことや不安に感じていることなどのご相談やご希望をお伺いします。
当プランについてはお客様の状況・ご要望をお伺いさせていただく場合があります。車いすのお手配や空港でのお手伝いが必要な場合は、ダイナミックパッケージでのご予約時「お客様情報入力」画面、連絡情報入力に続いて「サポート情報入力」にご登録ください。後日ご予約者さまへご連絡させていただきます。
宿泊のみのご予約で特別な配慮を必要とされるお客様は、ご予約の施設に事前にご連絡ください。
お客様情報入力画面内「+入力する」ボタンを選択後、入力フォームが表示されますので、必要事項をご記入ください。
記載の内容は2025年5月現在のもので、変更となることがあります。
車いすやシャワーチェアの貸出は数に限りがある場合がありますので、ご予約の施設にご確認ください。
岩手県
どなたにも快適にお過ごしいただけるよう配慮したお部屋「アクセシブルルーム」をご用意。
また、ご同伴の方が安心してお泊まりいただけるよう、内ドアで行き来できるコネクティングルームとしてご利用いただけます。
「◯」は対応していることを表します
「✕」は対応していないことを表します
| 部屋名称 | 渓流ユニバーサルルーム |
|---|---|
| 設定ルーム数 | 1部屋 |
| お部屋の広さ | 41平米 |
| 利用人数 | ツインルーム(2名~3名1室) |
| 禁煙・喫煙 | 禁煙 |
| 車いすでの利用 | ◯ |
| 部屋の入口幅 | 76センチ |
| 車いす貸し出し | 館内◯、館外◯ ※貸出用5台 |
| シャワーチェア貸し出し | ◯ |
| 多目的トイレ(館内) | ◯ |
| 字幕対応テレビ | ◯ |
| 筆談具 | ◯ |
| エレベーター | ◯ |
客室の一例(イメージ)
客室の一例(イメージ)
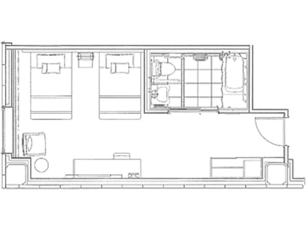
ユニバーサルルーム間取り図(イメージ)
宮城県
バリアフリー対応のツインルームです。
バスルーム&トイレは車椅子対応。フロント直結の呼出し機能付き。
ソファベッド(2名がけソファ)を備え、最大3名様までのご宿泊に対応可能です。
「◯」は対応していることを表します
「✕」は対応していないことを表します
| 部屋名称 | ユニバーサルツインルーム |
|---|---|
| 設定ルーム数 | 1部屋 |
| お部屋の広さ | 27平米 |
| 利用人数 | ツインルーム(1~3名1室) |
| 禁煙・喫煙 | 禁煙 |
| 車いすでの利用 | ◯ |
| 部屋の入口幅 | 90センチ |
| 車いす貸し出し | 館内×、館外×(緊急用としてのみ使用) |
| シャワーチェア貸し出し | ◯ |
| 多目的トイレ(館内) | ◯ |
| 字幕対応テレビ | ◯ ※スタッフの操作必要なため事前連絡必要 |
| 筆談具 | ◯ |
| エレベーター | ◯ |
客室の一例(イメージ)
客室の一例(イメージ)
バス・トイレ(イメージ)
ユニバーサルルーム間取り図(イメージ)
宮城県
車椅子での移動がスムーズなフローリング、車椅子のまま入室いただける浴室・化粧室を設え、快適なホテルライフをおたのしみいただけます。
お部屋の窓から見える景色は、ガーデンの一部のみとなります。
「◯」は対応していることを表します
「✕」は対応していないことを表します
| 部屋名称 | ユニバーサルルーム |
|---|---|
| 設定ルーム数 | 1部屋 |
| お部屋の広さ | 37平米 |
| 利用人数 | ツインルーム(1~3名1室) |
| 禁煙・喫煙 | 禁煙 |
| 車いすでの利用 | ◯ |
| 部屋の入口幅 | 90センチ |
| 車いす貸し出し | 館内〇、館外× ※数量限り有、事前予約可 |
| シャワーチェア貸し出し | ◯ ※数量限り有、事前予約可 |
| 多目的トイレ(館内) | ◯ |
| 字幕対応テレビ | ◯ |
| 筆談具 | ◯ |
| エレベーター | ◯ |
客室の一例(イメージ)
客室の一例(イメージ)
バス・トイレ(イメージ)
ユニバーサルルーム間取り図(イメージ)
秋田県
ご家族やご友人、大切な方と過ごす贅沢な空間を演出する当館で一番広いお部屋です。
入口部の段差を除けば室内はほぼ段差のないバリアフリー設計となっており、車椅子でご利用のお客様からも好評です。
「◯」は対応していることを表します
「✕」は対応していないことを表します
| 部屋名称 | ビューバス貴賓室76平方m |
|---|---|
| 設定ルーム数 | 1部屋 |
| お部屋の広さ | 76平米 |
| 利用人数 | 和洋室(2~5名1室) |
| 禁煙・喫煙 | 禁煙 |
| 車いすでの利用 | ◯ |
| 部屋の入口幅 | 75センチ |
| 車いす貸し出し | 館内◯、館外◯ |
| シャワーチェア貸し出し | ◯(備え付け) |
| 多目的トイレ(館内) | × |
| 字幕対応テレビ | × |
| 筆談具 | × |
| エレベーター | ◯ |
客室の一例(イメージ)
客室の一例(イメージ)
ユニバーサルルーム間取り図(イメージ)
山形県
ユニバーサルルームではダブルサイズのベッドをご用意しております。お風呂場に手すりがあり、ご年配の方も安心してご利用いただけます。
トイレと洗面場の間に仕切り扉なし。
眺望なしのお部屋タイプとなります。
「◯」は対応していることを表します
「✕」は対応していないことを表します
| 部屋名称 | ユニバーサルルーム |
|---|---|
| 設定ルーム数 | 1部屋 |
| お部屋の広さ | 22平米 |
| 利用人数 | ダブルルーム(1~2名1室) |
| 禁煙・喫煙 | 禁煙 |
| 車いすでの利用 | ◯ |
| 部屋の入口幅 | 90センチ |
| 車いす貸し出し | 館内◯、館外◯ |
| シャワーチェア貸し出し | ◯ |
| 多目的トイレ(館内) | ◯(共用棟2階) |
| 字幕対応テレビ | × |
| 筆談具 | × |
| エレベーター | ◯ |
外観(イメージ)
客室の一例(イメージ)
ユニバーサルルーム間取り図(イメージ)
青森県
広さ29平米。車いすにも対応でき、バスとトイレがバリアフリー仕様になっているのが特徴です。ソファベッドのご利用で3名様までお泊りいただけます。
「◯」は対応していることを表します
「✕」は対応していないことを表します
| 部屋名称 | アクセシブルツイン |
|---|---|
| 設定ルーム数 | 1部屋 |
| お部屋の広さ | 29平米 |
| 利用人数 | 1~3名 |
| 禁煙・喫煙 | 禁煙 |
| 車いすでの利用 | ◯ |
| 部屋の入口幅 | 80センチ |
| 車いす貸し出し | 館内◯、館外× |
| シャワーチェア貸し出し | ◯ |
| 多目的トイレ(館内) | ◯ |
| 字幕対応テレビ | ◯ |
| 筆談具 | ◯ |
| エレベーター | ◯ |
客室の一例(イメージ)
バス・トイレ(イメージ)
石川県
居間12畳+洋間の広々とした展望ウッドテラス付きのお部屋です。
入口や客室内など全てにゆとりの広さを確保しており、段差がなく移動しやすい造りとなっております。
「◯」は対応していることを表します
「✕」は対応していないことを表します
| 部屋名称 | バリアフリールーム |
|---|---|
| 設定ルーム数 | 1部屋 |
| お部屋の広さ | 71平米 |
| 利用人数 | 和洋室(2~4名1室) |
| 禁煙・喫煙 | 禁煙 |
| 車いすでの利用 | ◯ |
| 部屋の入口幅 | 85センチ |
| 車いす貸し出し | 館内◯、館外× |
| シャワーチェア貸し出し | ◯ |
| 多目的トイレ(館内) | 〇(ユニバーサルルームのトイレにて対応) |
| 字幕対応テレビ | × |
| 筆談具 | 〇 ※紙とペン |
| エレベーター | ◯ |
客室の一例(イメージ)
客室の一例(イメージ)
洗面室(イメージ)
ユニバーサルルーム間取り図(イメージ)
石川県
大切な方とゆとりのあるお部屋でお寛ぎのひとときを。
バスルームはオーシャンビューで、車いすのままでも入れるロールインシャワーを採用しております。
「◯」は対応していることを表します
「✕」は対応していないことを表します
| 部屋名称 | ユニバーサルルーム |
|---|---|
| 設定ルーム数 | 2部屋 |
| お部屋の広さ | 60平米 |
| 利用人数 | ツインルーム(2~3名1室) |
| 禁煙・喫煙 | 禁煙 |
| 車いすでの利用 | ◯ |
| 部屋の入口幅 | 80センチ |
| 車いす貸し出し | 館内〇、館外× |
| シャワーチェア貸し出し | ◯ |
| 多目的トイレ(館内) | ◯ |
| 字幕対応テレビ | ◯ |
| 筆談具 | 〇(紙とペン、または音声読み取りアプリの利用) |
| エレベーター | ◯ |
客室の一例(イメージ)
客室の一例(イメージ)
バスルーム(イメージ)
ユニバーサルルーム間取り図(イメージ)
石川県
ご高齢の方や車いすをご利用の方にも快適な、段差をなくした和室とベッドの洋室がある客室です。半露天の温泉は窓を閉めて温まった後に窓を開ければ露天風呂と同じ清々しい空気を味わいながら、長湯が出来ます。
「◯」は対応していることを表します
「✕」は対応していないことを表します
| 部屋名称 | 【窓付源泉露天風呂付】バリアフリー対応鳳凰和洋室 |
|---|---|
| 設定ルーム数 | 1部屋 |
| お部屋の広さ | 主室(12.5畳)+ツイン洋室+リビング(10畳程)+月見庭園【窓付源泉露天風呂付】 |
| 利用人数 | 和洋室(2~8名1室) |
| 禁煙・喫煙 | 禁煙 |
| 車いすでの利用 | ◯ |
| 部屋の入口幅 | 110センチ 客室内最狭部分が85cm |
| 車いす貸し出し | ◯ |
| シャワーチェア貸し出し | ◯ |
| 多目的トイレ(館内) | ◯ |
| 字幕対応テレビ | ◯ |
| 筆談具 | 〇 |
| エレベーター | ◯ |
客室の一例(イメージ)
客室の一例(イメージ)
バスルーム(イメージ)
ユニバーサルルーム間取り図(イメージ)
石川県
ユニバーサルデザインのバリアフリー対応のお部屋です。
洗面・トイレ・風呂一体型のユニットバスで、ご高齢者や車椅子をご利用のお客様に快適にお過ごし頂けるように、段差などを無くしたお部屋になっております。
「◯」は対応していることを表します
「✕」は対応していないことを表します
| 部屋名称 | ユニバーサルツイン |
|---|---|
| 設定ルーム数 | 1部屋 |
| お部屋の広さ | 28平米 |
| 利用人数 | ツインルーム(2名1室) |
| 禁煙・喫煙 | 禁煙 |
| 車いすでの利用 | ◯ |
| 部屋の入口幅 | 90センチ |
| 車いす貸し出し | 館内◯、館外× |
| シャワーチェア貸し出し | ◯ |
| 多目的トイレ(館内) | ◯ |
| 字幕対応テレビ | × |
| 筆談具 | × |
| エレベーター | ◯ |
客室の一例(イメージ)
客室の一例(イメージ)
バスルーム(イメージ)
ユニバーサルルーム間取り図(イメージ)
福井県
バリアフリーのトイレ・浴室など、車椅子等での過ごしやすさと同行者の方々のケアのしやすさが、随所に考慮されているお部屋です。どなた様にも安心・快適にご利用いただけます。
「◯」は対応していることを表します
「✕」は対応していないことを表します
| 部屋名称 | ●一般客室●ツイン【ユニバーサルルーム仕様】 |
|---|---|
| 設定ルーム数 | 2部屋 |
| お部屋の広さ | 15.6平米~18平米 |
| 利用人数 | ツインルーム(1~2名1室) |
| 禁煙・喫煙 | 禁煙 |
| 車いすでの利用 | ◯ |
| 部屋の入口幅 | 76センチ |
| 車いす貸し出し | 館内◯、館外× |
| シャワーチェア貸し出し | ◯ |
| 多目的トイレ(館内) | ◯ |
| 字幕対応テレビ | ◯ |
| 筆談具 | × |
| エレベーター | ◯ |
客室の一例(イメージ)
バスルーム(イメージ)
お手洗い(イメージ)
富山県
車椅子をご利用の方に快適にお過ごし頂けるよう段差がない室内となっております。
「◯」は対応していることを表します
「✕」は対応していないことを表します
| 部屋名称 | アクセッシブルルーム |
|---|---|
| 設定ルーム数 | 1部屋 |
| お部屋の広さ | 33平米 |
| 利用人数 | 1~2名 |
| 禁煙・喫煙 | 喫煙可 |
| 車いすでの利用 | ◯ |
| 部屋の入口幅 | 97センチ |
| 車いす貸し出し | 館内◯、館外×(数に限り有) |
| シャワーチェア貸し出し | ◯ |
| 多目的トイレ(館内) | ◯(1階ロビーに1か所あり) |
| 字幕対応テレビ | ◯(番組による) |
| 筆談具 | ◯(紙とペン有) |
| エレベーター | ◯ |
客室の一例(イメージ)
バスルーム(イメージ)
客室の一例※ソファーベッド使用時(イメージ)
岐阜県
お身体の不自由な方やご高齢の方でも快適にお過ごしいただけるよう、段差をなくし、車いすの方にも配慮をされた洋室のお部屋です。2020年6月にオープンした棟になります。
「◯」は対応していることを表します
「✕」は対応していないことを表します
| 部屋名称 | 桜凛閣 ユニバーサルツイン |
|---|---|
| 設定ルーム数 | 3部屋 |
| お部屋の広さ | 48平米 |
| 利用人数 | ツインルーム(1~3名1室) |
| 禁煙・喫煙 | 禁煙 |
| 車いすでの利用 | ◯ |
| 部屋の入口幅 | 87センチ |
| 車いす貸し出し | 館内◯、館外× |
| シャワーチェア貸し出し | ◯ |
| 多目的トイレ(館内) | ◯ |
| 字幕対応テレビ | ◯ |
| 筆談具 | × |
| エレベーター | ◯ |
ユニバーサルツイン客室の一例(イメージ)
ユニバーサルトリプル客室の一例(イメージ)
お手洗い(イメージ)
ユニバーサルルーム間取り図(イメージ)
三重県
シルバー指定認定の宿です。
中庭側でリクライニング機能の付いた、シングル・セミダブルベッドを1台ずつご用意。洗面・トイレ・浴室が1ブースの中にあり、車椅子利用の方に対応できる設えになっています。
「◯」は対応していることを表します
「✕」は対応していないことを表します
| 部屋名称 | 禁煙 洋室 ツイン バリアフリールーム |
|---|---|
| 設定ルーム数 | 1部屋 |
| お部屋の広さ | 30平米 |
| 利用人数 | ツインルーム(2名1室) |
| 禁煙・喫煙 | 禁煙 |
| 車いすでの利用 | ◯ |
| 部屋の入口幅 | 85センチ |
| 車いす貸し出し | 館内◯、館外× |
| シャワーチェア貸し出し | ◯ |
| 多目的トイレ(館内) | ◯(1箇所) |
| 字幕対応テレビ | × |
| 筆談具 | ◯ |
| エレベーター | ◯ |
客室の一例(イメージ)
バスルーム(イメージ)
ユニバーサルルーム間取り図(イメージ)
静岡県
車椅子をご利用される方の視点で作られた客室。セパレート(バス・トイレ別)、バス・トイレの扉が引き戸タイプ、ベッド・洗面台・室内のスイッチが少し低く作られており、ベッドには手すりを設置したツインルーム。
「◯」は対応していることを表します
「✕」は対応していないことを表します
| 部屋名称 | N035 【禁煙】ユニバーサルツイン◆30平米(2名) |
|---|---|
| 設定ルーム数 | 1部屋 |
| お部屋の広さ | 30平米 |
| 利用人数 | ツインルーム(2名1室) |
| 禁煙・喫煙 | 禁煙 |
| 車いすでの利用 | ◯ |
| 部屋の入口幅 | 91.5センチ |
| 車いす貸し出し | 館内◯、館外× |
| シャワーチェア貸し出し | ◯(貸出/数に限りあり/お客様ご自身で申告が必要) |
| 多目的トイレ(館内) | ◯(1箇所) |
| 字幕対応テレビ | ◯※字幕切り替えで利用可能(一部チャンネル利用できない場合有) |
| 筆談具 | ◯ 小さなホワイトボード(1つ有)/希望時は事前連絡必要 |
| エレベーター | ◯ |
ユニバーサルツインルームの一例(イメージ)
ユニバーサルルーム間取り図(イメージ)
静岡県
フルフラットフロアのお部屋には、リクライニング機能のあるベッドを設置。身体への負担が少ない固めのマットレスを使用しています。専用の温泉露天風呂では、伊東の湯を心ゆくまでお楽しみいただけます。
「◯」は対応していることを表します
「✕」は対応していないことを表します
| 部屋名称 | 露天風呂付きバリアフリー ツインベッドルーム(室内風呂あり)/露天風呂付きバリアフリー ツインベッドルーム(室内風呂なし) |
|---|---|
| 設定ルーム数 | 1部屋/1部屋 |
| お部屋の広さ | 36平米 |
| 利用人数 | ツインルーム(2名1室) |
| 禁煙・喫煙 | 禁煙 |
| 車いすでの利用 | ◯ |
| 部屋の入口幅 | 90センチ/80センチ |
| 車いす貸し出し | ◯(館内のみ) |
| シャワーチェア貸し出し | ◯ |
| 多目的トイレ(館内) | ◯(3階に車いすで利用可のパブリックトイレあり) |
| 字幕対応テレビ | 〇/× |
| 筆談具 | × |
| エレベーター | ◯ |
客室の一例(イメージ)
客室露天風呂の一例(イメージ)
ユニバーサルルーム一例の間取り図(イメージ)
愛知県
世界の高級ベッド「シモンズベッド」を導入。上質な眠りと爽快な目覚めを提供します。バリアフリー仕様のツインルーム、広めのユニットバスでは、ゆったりとバスタブに浸かることができます。
「◯」は対応していることを表します
「✕」は対応していないことを表します
| 部屋名称 | 喫煙可 洋室 ユニバーサルツイン |
|---|---|
| 設定ルーム数 | 1部屋 |
| お部屋の広さ | 24平米 |
| 利用人数 | ツインルーム(1-2名1室) |
| 禁煙・喫煙 | 喫煙 |
| 車いすでの利用 | ◯ |
| 部屋の入口幅 | 85センチ |
| 車いす貸し出し | × |
| シャワーチェア貸し出し | × |
| 多目的トイレ(館内) | ◯(1Fロビーエリア) |
| 字幕対応テレビ | ◯ |
| 筆談具 | ◯ |
| エレベーター | ◯ |
客室の一例(イメージ)
バスルーム(イメージ)
ユニバーサルルーム間取り図(イメージ)
大阪府
高齢者や車椅子をご利用のお客様に、快適にお過ごしいただけるよう工夫をこらした機能的で広々としたお部屋です。ソファベッドでの3名様のご利用も可能です。
「◯」は対応していることを表します
「✕」は対応していないことを表します
| 部屋名称 | ユニバーサルツイン |
|---|---|
| 設定ルーム数 | 3部屋 |
| お部屋の広さ | 38平米 |
| 利用人数 | ツインルーム(2~3名1室) |
| 禁煙・喫煙 | 禁煙 |
| 車いすでの利用 | 〇 |
| 部屋の入口幅 | 90センチ |
| 車いす貸し出し | 館内◯、館外× |
| シャワーチェア貸し出し | 〇(備え付け有) |
| 多目的トイレ(館内) | 〇 |
| 字幕対応テレビ | 〇 |
| 筆談具 | 〇 |
| エレベーター | ◯ |
客室の一例(イメージ)
バスルーム(イメージ)
ユニバーサルルーム間取り図(イメージ)
兵庫県
当館で最も広い140平米のお部屋です。
広い湯舟のお部屋専用金泉露天風呂のみならず、お部屋専用の金泉足湯が客室テラスにございます。
1階の車停めからそのまま階段なしでお入りいただけ、トイレ、洗面所も車椅子で入れる広さを確保したお部屋です。
「◯」は対応していることを表します
「✕」は対応していないことを表します
| 部屋名称 | 【別館_1Fフロア貸切特別室(金泉露天風呂&足湯付)】 |
|---|---|
| 設定ルーム数 | 1部屋(W枠) |
| お部屋の広さ | 140平米 |
| 利用人数 | 和洋室(2~6名1室) |
| 禁煙・喫煙 | 禁煙 |
| 車いすでの利用 | ◯ |
| 部屋の入口幅 | |
| 車いす貸し出し | 館内◯、館外◯(1台のみ) |
| シャワーチェア貸し出し | ◯ |
| 多目的トイレ(館内) | ◯ |
| 字幕対応テレビ | ◯ |
| 筆談具 | × |
| エレベーター | ◯(特別室は1階となります。) |
外観(イメージ)
客室の一例(イメージ)
大阪府
ホテルインターゲート大阪 梅田は、より多くのお客様に快適にご利用いただけるよう、ユニバーサルデザインへの取組みを実施しております。
「◯」は対応していることを表します
「✕」は対応していないことを表します
| 部屋名称 | ユニバーサルツインルーム |
|---|---|
| 設定ルーム数 | 1部屋 |
| お部屋の広さ | 36平米 |
| 利用人数 | ツインルーム(1-3名1室) |
| 禁煙・喫煙 | 禁煙 |
| 車いすでの利用 | ◯ |
| 部屋の入口幅 | 85センチ |
| 車いす貸し出し | 館内◯(数に限り有のため、要予約)、館外× |
| シャワーチェア貸し出し | ◯ |
| 多目的トイレ(館内) | ◯(2階にあり) |
| 字幕対応テレビ | ◯ |
| 筆談具 | ◯(紙とペン有) |
| エレベーター | ◯ |
客室の一例(イメージ)
バス・トイレ(イメージ)
ユニバーサルルーム間取り図(イメージ)
和歌山県
海を眺める最上階に限定3室のお部屋。アジアンテイストでモダンな洋室です。段差がないユニバーサルデザイン仕様なので、車椅子の方でも安心してご利用いただけます。
客室内のトイレ・お風呂には手すりはございません
「◯」は対応していることを表します
「✕」は対応していないことを表します
| 部屋名称 | 暁の抄 アジアン客室 |
|---|---|
| 設定ルーム数 | 3部屋 |
| お部屋の広さ | 49平米 |
| 利用人数 | ツインルーム(2名1室) |
| 禁煙・喫煙 | 禁煙 |
| 車いすでの利用 | ◯ |
| 部屋の入口幅 | 78.5センチ |
| 車いす貸し出し | 館内◯(数に限り有)、館外× |
| シャワーチェア貸し出し | ◯(数に限り有) |
| 多目的トイレ(館内) | ◯(1階ロビーに1か所あり) |
| 字幕対応テレビ | × |
| 筆談具 | ◯(紙とペン有) |
| エレベーター | ◯ |
外観(イメージ)
客室の一例(イメージ)
客室露天風呂(イメージ)
ユニバーサルルーム間取り図(イメージ)
山口県
大型液晶ワイドTV、BS放送(無料)、VODシアター(有料)、イオンドライヤー、冷蔵庫(空)、バスルーム(ユニバーサルタイプ)・洗浄機付トイレ、湯沸かしポット、空気清浄機 他
「◯」は対応していることを表します
「✕」は対応していないことを表します
| 部屋名称 | ファミリールーム |
|---|---|
| 設定ルーム数 | 1部屋(W枠) |
| お部屋の広さ | 33平米 |
| 利用人数 | ダブルルーム(1‐2名1室) |
| 禁煙・喫煙 | 喫煙 |
| 車いすでの利用 | ◯ |
| 部屋の入口幅 | 90センチ |
| 車いす貸し出し | 館内◯、館外◯ |
| シャワーチェア貸し出し | × |
| 多目的トイレ(館内) | ◯ |
| 字幕対応テレビ | ◯ |
| 筆談具 | ◯ |
| エレベーター | ◯(ファミリールームは1Fの為、エレベーターの利用はなし) |
客室の一例(イメージ)
バスルーム(イメージ)
ユニバーサルルーム間取り図(イメージ)
岡山県
車椅子でのご利用に配慮したお部屋です。 段差が無いため、高齢者にもご利用しやすいタイプです。バス、トイレをセパレートにし、それぞれに手すりを取り付けてご利用頂き易いようなお部屋としております。
「◯」は対応していることを表します
「✕」は対応していないことを表します
| 部屋名称 | ユニバーサルルームB |
|---|---|
| 設定ルーム数 | 2部屋 |
| お部屋の広さ | 34平米 |
| 利用人数 | ツインルーム(1~2名1室) |
| 禁煙・喫煙 | 禁煙 |
| 車いすでの利用 | ◯ |
| 部屋の入口幅 | 88センチ |
| 車いす貸し出し | 館内のみ◯ |
| シャワーチェア貸し出し | ◯(客室に常設) |
| 多目的トイレ(館内) | ◯ |
| 字幕対応テレビ | ◯ |
| 筆談具 | ◯ |
| エレベーター | ◯ |
客室の一例(イメージ)
バスルーム(イメージ)
お手洗い(イメージ)
ユニバーサルルーム間取り図(イメージ)
広島県
車椅子でもゆったりと動けるよう、間口を広く、小上がりの畳スペースと細かな段差を取り除くことでフルフラットのお部屋となっております。
トイレ、バスもユニバーサルデザインに対応しております。
「◯」は対応していることを表します
「✕」は対応していないことを表します
| 部屋名称 | デラックス洋室 |
|---|---|
| 設定ルーム数 | 2部屋 |
| お部屋の広さ | 50.17平米 |
| 利用人数 | ツインルーム(1~4名1室) ※添い寝のお客様は上記に追加4名まで対応可能 |
| 禁煙・喫煙 | 禁煙 |
| 車いすでの利用 | ◯ |
| 部屋の入口幅 | 93センチ |
| 車いす貸し出し | ◯ |
| シャワーチェア貸し出し | ◯ |
| 多目的トイレ(館内) | ◯ |
| 字幕対応テレビ | × |
| 筆談具 | ◯ |
| エレベーター | ◯ |
客室の一例(イメージ)
バスルーム(イメージ)
ユニバーサルルーム間取り図(イメージ)
香川県
車いすの方も快適にご利用いただけるように動線や設備を考慮したユニバーサルルームです。
ゆとりあるレイアウトにキングサイズの大きなベッドを設置しております。
「◯」は対応していることを表します
「✕」は対応していないことを表します
| 部屋名称 | ユニバーサルキング |
|---|---|
| 設定ルーム数 | 1部屋 |
| お部屋の広さ | 28平米 |
| 利用人数 | ダブルルーム(1〜2名1室) |
| 禁煙・喫煙 | 禁煙 |
| 車いすでの利用 | ◯ |
| 部屋の入口幅 | 85センチ |
| 車いす貸し出し | 館内×、館外× |
| シャワーチェア貸し出し | ◯(客室に常設) |
| 多目的トイレ(館内) | ◯ |
| 字幕対応テレビ | ◯ |
| 筆談具 | ×(メモ用のメモ数枚とペンはあり) |
| エレベーター | ◯ |
客室の一例(イメージ)
バスルーム(イメージ)
徳島県
どなたにも快適にお過ごし頂けるよう配慮したアクセシブルルームはエレベーターの近くにあります。客室内は段差をなくし、バスルームには手すりを設置しました。入口も広く、車椅子でもスムーズに出入りできます。
「◯」は対応していることを表します
「✕」は対応していないことを表します
| 部屋名称 | アクセシブルルーム |
|---|---|
| 設定ルーム数 | 1部屋 |
| お部屋の広さ | 37平米 |
| 利用人数 | ツインルーム (1-3名1室) (ベッド2台+ソファベッド) |
| 禁煙・喫煙 | 禁煙 |
| 車いすでの利用 | ◯ |
| 部屋の入口幅 | 77センチ |
| 車いす貸し出し | 館内のみ〇(要予約) |
| シャワーチェア貸し出し | ◯(客室に常設) |
| 多目的トイレ(館内) | ◯(メインタワー2F) |
| 字幕対応テレビ | ×(字幕対応番組であれば設定により表示あり) |
| 筆談具 | ×(メモ用のメモ数枚とペンはあり) |
| エレベーター | ◯ |
客室の一例(イメージ)
バスルーム(イメージ)
ユニバーサルルーム間取り図(イメージ)
島根県
令和3年にオープンした本館は、設計段階からバリアフリー化への取り組みを重視し、2022年日本ホテル協会より会長表彰を受賞しました。バスルームやベッド付近の車椅子回転スペースは十分な広さを確保しております。
「◯」は対応していることを表します
「✕」は対応していないことを表します
| 部屋名称 | 新オープン本館 レイクビューユニバーサルツイン |
|---|---|
| 設定ルーム数 | 3部屋 |
| お部屋の広さ | 33平米 |
| 利用人数 | 2~4名 |
| 禁煙・喫煙 | 禁煙 |
| 車いすでの利用 | ◯ |
| 部屋の入口幅 | 88センチ |
| 車いす貸し出し | 館内◯、館外× |
| シャワーチェア貸し出し | ◯ |
| 多目的トイレ(館内) | ◯ |
| 字幕対応テレビ | ◯ |
| 筆談具 | ×(フロントで対応可) |
| エレベーター | ◯ |
客室の一例(イメージ)
バス・トイレ(イメージ)
ユニバーサルルーム間取り図(イメージ)
愛媛県
当館で唯一のバリアフリールーム。バリアフリー対応なので、バス・トイレへも車いすで楽々移動可能です。
「◯」は対応していることを表します
「✕」は対応していないことを表します
| 部屋名称 | 洋室 バリアフリールーム |
|---|---|
| 設定ルーム数 | 1部屋 |
| お部屋の広さ | 49平米 |
| 利用人数 | 2~4名 |
| 禁煙・喫煙 | 禁煙 |
| 車いすでの利用 | ◯ |
| 部屋の入口幅 | 81センチ |
| 車いす貸し出し | ◯(数に限り有) |
| シャワーチェア貸し出し | ◯(数に限り有) |
| 多目的トイレ(館内) | ◯(1階ロビーに1か所あり) |
| 字幕対応テレビ | × |
| 筆談具 | ◯(紙とペン有) |
| エレベーター | ◯ |
客室の一例(イメージ)
お手洗い(イメージ)
高知県
車椅子のままお入りいただける入口のスロープから中へ入ると、広々とした74平米のメインルームが広がります。お風呂やお手洗いなど、車いすでもらくらく快適にお過ごしいただける高知では数少ないバリアフリーに対応した特別室で高知旅行をご満喫下さい。
「◯」は対応していることを表します
「✕」は対応していないことを表します
| 部屋名称 | 天誠 リニューアル バリアフリー特別室 |
|---|---|
| 設定ルーム数 | 1部屋 |
| お部屋の広さ | 74平米 |
| 利用人数 | 2~6名 |
| 禁煙・喫煙 | 禁煙 |
| 車いすでの利用 | ◯ |
| 部屋の入口幅 | 100センチ |
| 車いす貸し出し | 館内◯、館外◯ |
| シャワーチェア貸し出し | ×(バスリフト有り) |
| 多目的トイレ(館内) | ◯ |
| 字幕対応テレビ | × |
| 筆談具 | × |
| エレベーター | ◯ |
バリアフリールーム(イメージ)
お手洗い(イメージ)
バスルーム(イメージ)
ユニバーサルルーム間取り図(イメージ)
掲載画像はすべてイメージです。
1
2
3
4
5
6
7
8
9
0
a
b
c
d
e
f
g
h
i
j
k
l
m
n
o
p
q
r
s
t
u
v
w
x
y
z
A
B
C
D
E
F
G
H
I
J
K
L
M
N
O
P
Q
R
S
T
U
V
W
X
Y
Z
全てクリア
一文字クリア
ログイン画面で「ログイン状態を保持」にチェックをすると、次回以降、お客様番号、パスワードの入力を省略できます。
「次回以降、この確認画面を表示しない」にチェックをした場合でも、全てのブラウザを終了すると再度この確認画面が表示されます。
XXXXXXXxxx@gmail.com
に送信されたワンタイムパスワードと同じ絵文字・数字を選択してください。選択する順番は問いません。
* メール等をご確認の際はこの画面を閉じないようご注意ください。
ワンタイムパスワードが届かない場合
メール等が届かない場合はこちら
で受信設定をご確認のうえ再送信してください。
一定時間画面操作がされない場合は、ワンタイムパスワードを再送信して頂く必要があります。
メール等が届かない場合はこちら
で受信設定をご確認のうえ再送信してください。
現在システムメンテナンス中につき、一時的に新規登録を停止しております。
マイル
現在のANA SKY コイン数
プレミアムポイント / ANAグループ運航便 /